Amani and Nia at Sunnydale

San Francisco CA | Completed 

2025

Amani and Nia are two affordable housing buildings within a larger HOPE SF redevelopment in southeast San Francisco. Serving as a prominent entry point for the renewed neighborhood, the pair include 170 affordable family homes, management and service offices, a wellness clinic, retail and food service, and an early-childhood-education center.

Sunnydale’s mixed-use master plan will offer approximately 1,770 replacement and added homes; new streets, utilities, and infrastructure; and extensive open green space and neighborhood services and retail. Sunnydale is one of San Francisco’s biggest redevelopment projects, replacing housing that was originally created for WWII workers at the port and then converted to public housing in 1964. One goal of the development is to successfully rehouse people currently living in the neighborhood in new homes of comparable size.

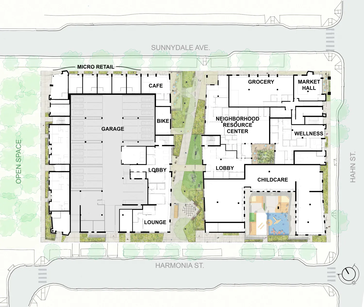
Amani and Nia are among the first buildings in the redevelopment. Located in the northeast corner of the neighborhood, they are paired with an upcoming new Community Center at the corner of Sunnydale and Hahn. The two affordable residential buildings are oriented onto a landscaped pedestrian mews that bisects the site and hosts the main residential entries. This public passage also breaks down the scale of the surrounding blocks and creates a direct path to the Community Center for the residents of 290 Malosi Street, affordable housing on Block 6 to the south, which was completed in 2022.

On the eastern side of the site, Amani features a service-rich ground floor with space intended for a future market hall and grocery—a significant food asset that would benefit this currently under-served area. This building includes a large office suite for Mercy Housing to offer resident services for the larger Sunnydale development. Additional neighborhood-serving resources in this building include a Wellness Center run by the San Francisco Department of Public Health and a Felton Institute early-childhood-education center with a private outdoor courtyard.  

At the western side of the site, Nia faces a future park and will include ground-level micro-retail spaces subsidized by the developer to activate the street edge and provide resources and opportunity for local residents

The buildings are designed with four residential bars to bring sunlight into all units, linked by open-air bridges. The second-level podiums are open to the street and sky.

The building steps down on Harmonia toward single-family lots to the south, and the articulated façade further breaks down the visual scale. Residential entries along the pedestrian mews are highlighted by weathering steel, which will acquire a rich, rusted patina.


Project Details


Project Number
21845

Address

1529 & 1533 Sunnydale Avenue
San Francisco, CA
United States



Status
Completed
2025

Number of Units
Studio
8
1 Bedroom
48
2 Bedroom
64
3 Bedroom
42
4 Bedroom
8

Total 170

Density Ratios
Project
263,654 sf
Site
73,569 sf
Acres
1.69
Units per Acre
101

Parking
Parking Spots
96
Parking Type
garage with stackers

Construction
Type IA
Type V
5-6 Stories

Certifications
GreenPoint Rated Gold

Team


Developer
Related California
Developer
Mercy Housing California
Architect
David Baker Architects
Landscape Architect
Interstice Architects
General Contractor
Structural Engineer
Mar Structural Design
Mechanical/Plumbing Engineer
Tommy Siu + Associates
Electrical Engineer
BWF Consulting Engineers
Civil Engineer
KPFF Consulting Engineers

Keywords